
Joseph
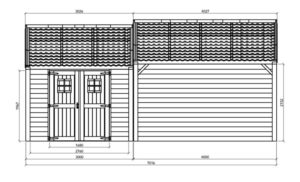
| Grondoppervlakte: | 21,00 m² |
| Breedte: | 3000 + 4000 mm |
| Diepte: | 3000 mm |
| Hoogte huisje: | 3250 mm |
| Hoogte overkapping: | 3395 mm |
| Afmetingen dubbele deur (L/H): | 1,68 x 1,967 m |
| Wanddikte: | 19 mm + kader 70 mm |
| Dikte dakplanchetten: | 19 mm |
| Dakhelling: | 35° |
19 mm dakplanchetten
Impregnatie klasse III
Houten deur
Wandprofiel ‘Fermette’
Isolatieband
Metalen dakpanplaten (RAL 7016)
Zink-magnesium dakgoten
Zink-magnesium dakgoot met afwateringsbuis
Zwart slot


